Gemeinde Timmendorfer Strand

Gemeinde Timmendorfer Strand
Postanschrift: Strandallee 42, Außenstelle Bauamt/Auslegung: Poststr. 35
23669 Timmendorfer Strand
s.suske@timmendorfer-strand.org
3.60
Bauamt
Ansprechpartner / in
Frau Sybille Suske
Bauleitplanung
Tel.: 04503-807124
s.suske@timmendorfer-strand.org
Frau Maja Preuß
Bauleitplanung
Tel.: 04503-807302
m.preuss@timmendorfer-strand.org

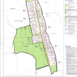
Bebauungsplan Nr.

35

Överdiek

Neuaufstellung
vom 04.07.2018

Planzeichnung

Alle Dokumente zu

Neuaufstellung

vom 04.07.2018

Planzeichnung
Dokumente
Begründung