Gemeinde Timmendorfer Strand

Gemeinde Timmendorfer Strand
Postanschrift: Strandallee 42, Außenstelle Bauamt/Auslegung: Poststr. 35
23669 Timmendorfer Strand
s.suske@timmendorfer-strand.org
3.60
Bauamt
Ansprechpartner / in
Frau Sybille Suske
Bauleitplanung
Tel.: 04503-807124
s.suske@timmendorfer-strand.org
Frau Maja Preuß
Bauleitplanung
Tel.: 04503-807302
m.preuss@timmendorfer-strand.org

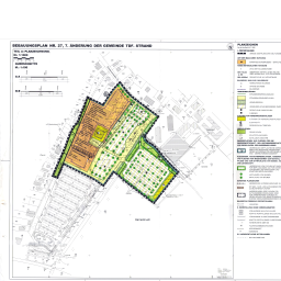
Bebauungsplan Nr.

27

Wolburgstraße, Poststraße, Wiesenweg, B76

7. Änderung
vom 07.02.2008

Planzeichnung

Alle Dokumente zu

7. Änderung

vom 07.02.2008

Planzeichnung
Dokumente
Begründung
Zusammenfassende Erklärung