Gemeinde Ratekau

Gemeinde Ratekau
Bäderstraße 19
23626 Ratekau
Tel.: 04504 803-0
Fax: 04504 803-111
info@ratekau.de
http://www.ratekau.de
Ansprechpartner / in
Frau Elisabeth Ulrich
Bauleitplanung
Tel.: 04504 803-640
eulrich@ratekau.de
Frau Christin Stark
Bauleitplanung
Tel.: 04504 803-601
christin.stark@ratekau.de

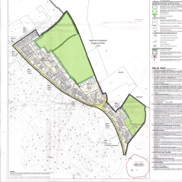
Bebauungsplan Nr.

100

Hauptstraße

Erstaufstellung
vom 21.08.2019

Planzeichnung

Alle Dokumente zu

Erstaufstellung

vom 21.08.2019

Planzeichnung
Dokumente
Begründung
Schalltechnische Untersuchung
Zusammenfassende Erklärung