Stadt Fehmarn

Stadt Fehmarn
Burg auf Fehmarn, Am Markt 1
23769 Fehmarn
Tel.: 04371 / 506-0
Fax: 04371 / 506-147
info@stadtfehmarn.de
http://www.stadtfehmarn.de
Fachbereich Bauen und Häfen
Stadtplanung
Ansprechpartner / in
Frau Claudia Parge
Teamleitung Stadtplanung und Bauantragsverfahren
Tel.: 04371 / 506-245
c.parge@stadtfehmarn.de

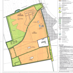
Bebauungsplan Nr.

117

Campingplatz Katharinenhof

Erstaufstellung
vom 24.02.2017

Planzeichnung

Alle Dokumente zu

Erstaufstellung

vom 24.02.2017

Planzeichnung
Dokumente
Begründung
FFH-Verträglichkeitsstudie
Lageplan
Detail Lageplan